Kiilakallio

Kiilakallio provides an environment for relaxing holiday in Eastern Finland at best. It is bright, functional and spacious well equipped holiday house for 6-8 persons. Cosy cottage with amazing views by the lake and near all the services of Savonlinna. Kiilakallio is a holiday house with very good location, providing culture, sports, peace of the nature and relaxing place to be according to your needs. The best thing in all this is that the holiday house with all comforts is available for year round use. Check the important facts from the right and photos below, love it and book it!
Basics:
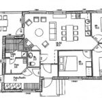
3 bedrooms + kitchen/living room + hallway
6 + 2 beds
For year-round use
Electrical-/woodheating
Built 2007
Living area 88 m²
Total area 100 m² + porch 26 m²
Wooden house
Equipments:
Electricity; grid electricity, water pipe (well), WC, shower, electric lighting, fridge, fireplace, firewood, electric kitchen stove, microwave, tableware, dishwasher, coffee machine, toaster, TV, washing machine, airing cupboard, vacuum cleaner, barbeque, rowboat, wharf
Covers for extra price
Sauna 5m², woodheating 4-5 persons inside the holiday house and in addition a separate lakeside sauna for use in summer
In addition there is a dressing room and bathroom
Photo gallery
★★★★★ 5/5
” 5-star holiday with amazing views by the peacefulness of nature. Really cosy and luxury holiday house, we will definitely come back again!”









